Cradle Garden 富士市今泉第29 全3棟
2号棟:2,480 万円
STYLE PHOTO物件情報
Cradle Garden 富士市今泉第29 全3棟
家族みんながゆったり暮らせる4LDK ☆ 家事の時間もくつろぐ時間も心地いい暮らし!
物件概要
■所在地/富士市今泉踊場3109番26
■カーナビ入力/富士市今泉3110-7付近
■交通/岳南鉄道線「本吉原」駅徒歩約37分(約2,900m)
■学区/青葉台小学校 徒歩約10分(約770m)・吉原第二中学校 徒歩21分(約1,635m)
■販売価格(税込)/ 1号棟:済 2号棟:2,480万円 3号棟:済
■土地面積/ 2号棟:227.32㎡(68.76坪)
■建物面積/ 2号棟:95.98㎡(29.03坪)
■建ぺい率/50%
■容積率/150%・80%
■建築確認番号/第R07SHC119822号 他
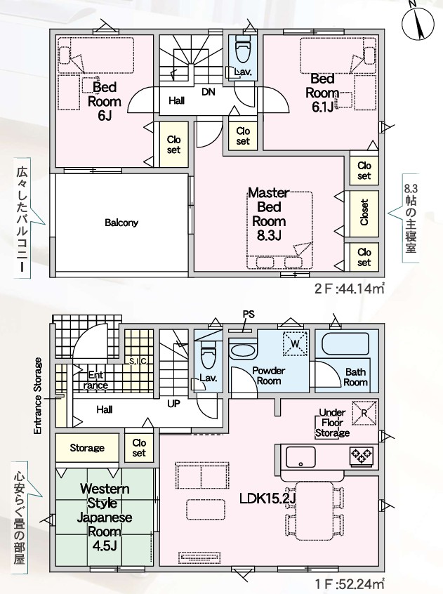
■間取り/4LDK 4LDK 4LDK
■構造/木造2階建
■完成/2026年1月
■用途/第1種中高層住居専用地域・第1種低層住居専用地域
■設備/東京電力・公営水道・公共下水・都市ガス
■取引態様/媒介
■今回販売/1棟
備考/記載事項と現況が異なる場合は現況優先となります。
◆返済例は頭金0円、ボーナス加算額0円、変動金利0.9%・静岡銀行・35年返済の場合です。
■カーナビ入力/富士市今泉3110-7付近
■交通/岳南鉄道線「本吉原」駅徒歩約37分(約2,900m)
■学区/青葉台小学校 徒歩約10分(約770m)・吉原第二中学校 徒歩21分(約1,635m)
■販売価格(税込)/ 1号棟:済 2号棟:2,480万円 3号棟:済
■土地面積/ 2号棟:227.32㎡(68.76坪)
■建物面積/ 2号棟:95.98㎡(29.03坪)
■建ぺい率/50%
■容積率/150%・80%
■建築確認番号/第R07SHC119822号 他
■間取り/4LDK 4LDK 4LDK
■構造/木造2階建
■完成/2026年1月
■用途/第1種中高層住居専用地域・第1種低層住居専用地域
■設備/東京電力・公営水道・公共下水・都市ガス
■取引態様/媒介
■今回販売/1棟
備考/記載事項と現況が異なる場合は現況優先となります。
◆返済例は頭金0円、ボーナス加算額0円、変動金利0.9%・静岡銀行・35年返済の場合です。
物件情報について
※ 価格に税込または消費税込と記載した物件は、消費税の課税対象となるものであることを示し価格は消費税を含んだ額です。
※ 媒介(仲介)の場合既定の仲介手数料、及び消費税が課せられます。
※ 間取りに関する記載︓SIC=シューズインクローゼット、WIC=ウォークインクローゼット
※ 徒歩1分=80m換算です。
※ 媒介(仲介)の場合既定の仲介手数料、及び消費税が課せられます。
※ 間取りに関する記載︓SIC=シューズインクローゼット、WIC=ウォークインクローゼット
※ 徒歩1分=80m換算です。
























































